


No Alto Humaitá, com 810m² de área construída, esta é uma casa carioca, sem dúvida. Mas que traz aquela energia contagiante que só a Bahia tem. É que depois de pertencer a um casal de atores baianos, o imóvel foi vendido para outro casal, também de Salvador, que se mudou para lá com os três filhos pequenos. A meta da reforma realizada pelo escritório Mauricio Nobrega Arquitetura?




- Apesar de já ter passado por uma reforma recente, a casa precisava de adequações para deixar os ambientes menos divididos e mais amplos como era o desejo dos novos moradores – lembra Mauricio.
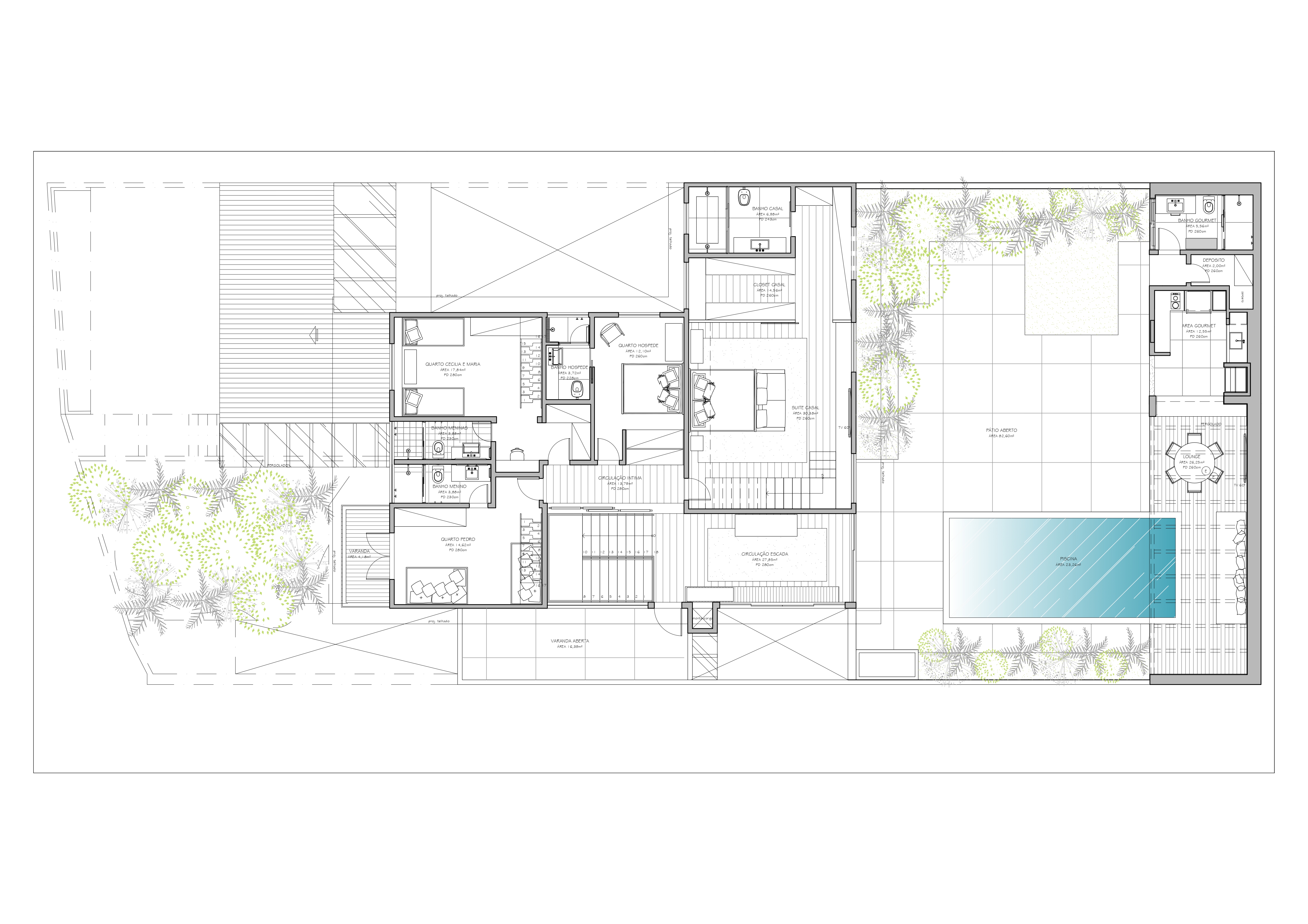
O primeiro andar, que antes era dividido e contava com um escritório, passou a ter três salas grandes: estar, jantar e TV. Todas abertas para o exterior por portas de correr. Já a área externa ganhou uma cozinha gourmet bem mais ampla, um banheiro/vestiário e uma sauna. O paisagismo também foi totalmente refeito com plantas tropicais e exuberantes que criaram cantinhos perfeitos para os momentos de descanso. Na decoração, o destaque é o uso de peças de design nacional em praticamente todos os ambientes sociais como as cadeiras Taja, de Sérgio Rodrigues, na área gourmet; as luminárias de Jader Almeida; a mesa e cadeiras de jantar de Maria Cândida Machado; a chaise Pitu, de Aristeu Pires, na sala de TV; e as cadeiras Maresias, de Carlos Motta, na varanda.


Outra modificação foi no porão. Usado pelos antigos moradores como uma sala de ensaios, o espaço foi transformado em um quarto de hóspedes apenas para as crianças. Mas que no dia a dia serve como uma family-room.

Já o andar íntimo ganhou um novo layout com quatro suítes amplas, banheiros mais modernos e um grande closet na suíte master. Mas a grande mudança ali aconteceu quando Mauricio descobriu que a casa tinha um sótão com pé-direito alto. Isso permitiu criar mezaninos nas três suítes principais com um segundo ambiente para os moradores: escritório no quarto do casal; área para estudos e brincadeiras no quarto do filho; e brinquedoteca no quarto das duas meninas.
